Description
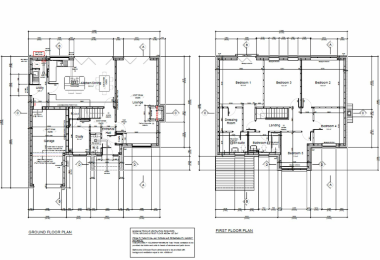
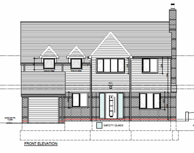
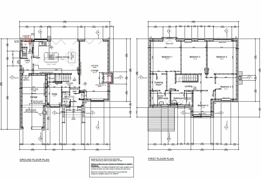
Introducing an exciting “Shovel-ready” development opportunity! Situated in a prime location, this land comes with planning permission for the construction of two spacious five-bedroom detached homes spanning approximately 2300 sq. ft. Each property offers a generous layout, complete with an integral garage and ample parking space.
This sought-after location is primed for transformation, with all necessary preparations completed and ready for groundbreaking. With building regulations sorted, construction plans finalized, and utilities already installed on site, this development offers a seamless path to success.
Whether you’re an investor or envisioning your dream home, seize this opportunity to create two exceptional properties in this desirable location. Don’t wait – contact us now to make the most of this shovel-ready opportunity!
Location!
Positioned in a serene rural setting, the location offers picturesque views overlooking expansive fields with access to the property provided through a country lane, leading to a spacious yard area.
Titus Farm, situated on Meresborough Road in Rainham, enjoys a tranquil rural setting amidst picturesque surroundings. Meresborough Road serves as a vital thoroughfare in the area, connecting various parts of the village and providing easy access to essential amenities. The property benefits from its close proximity to major transportation routes, including the M2 motorway and the A2, making it conveniently accessible from nearby towns and cities. Titus Farm offers a desirable blend of countryside living with accessibility to urban conveniences.
Kindly be advised that I am direct to the owners, and there is a 1.8% inclusive of VAT buyers fee payable upon exchange.
VIEWING:Â viewings by appointment only.
TENURE: The site will be sold Freehold, subject to contract only.
METHOD OF SALE:Â The vendor is seeking unconditional and outright only bids to purchase.
PRICE: Offers in region of £500,000.
When submitting bids the letter of intent for the site acquisition should include the following points:
Purchase bid price
Indication of proof of funds
Acquisition track records
EPC Rating: C
Sorry, no records were found. Please adjust your search criteria and try again.
Sorry, unable to load the Maps API.
Comments are closed.









