Development opportunity – Full planning permission granted for the erection of a detached house, 2 detached garages and a rear extension to the existing house (existing garage to be demolished).
Mill Lane is located in the centre of the Village of Preston, approximately 3.0 miles from Wingham. Preston benefits from good range of local services and amenities including a Primary school, Butchers, shop and garden Centre. Sandwich (8.5 miles) has a wider range of facilities, and the Cathedral City of Canterbury (10 miles) has a full range of shopping, educational and leisure facilities.
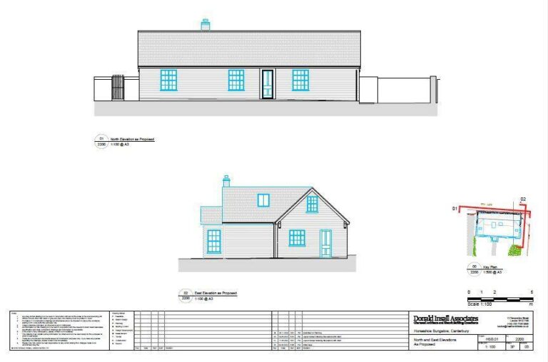
The approved plans will create a new build 4 bedroom, 4 bathroom property with 2 reception rooms and an open plan kitchen/dining room. The existing property will be extended to create a 4 bedroom 4 bathroom house with a superb open plan kitchen, dining room, living room with an additional snug, utility room and large entrance hall.
An information pack including the approved plans, Decision Notice, and other supporting documentation is available on request from the Agents, alternatively these documents are available on the Dover District Council website using the reference number 22/01577
Plans:
Any plans contained within these particulars are indicative only and the property will be sold in accordance with the registered title. Interested parties are to satisfy themselves with the physical boundaries on-site.
Sorry, no records were found. Please adjust your search criteria and try again.
Sorry, unable to load the Maps API.
Comments are closed.








